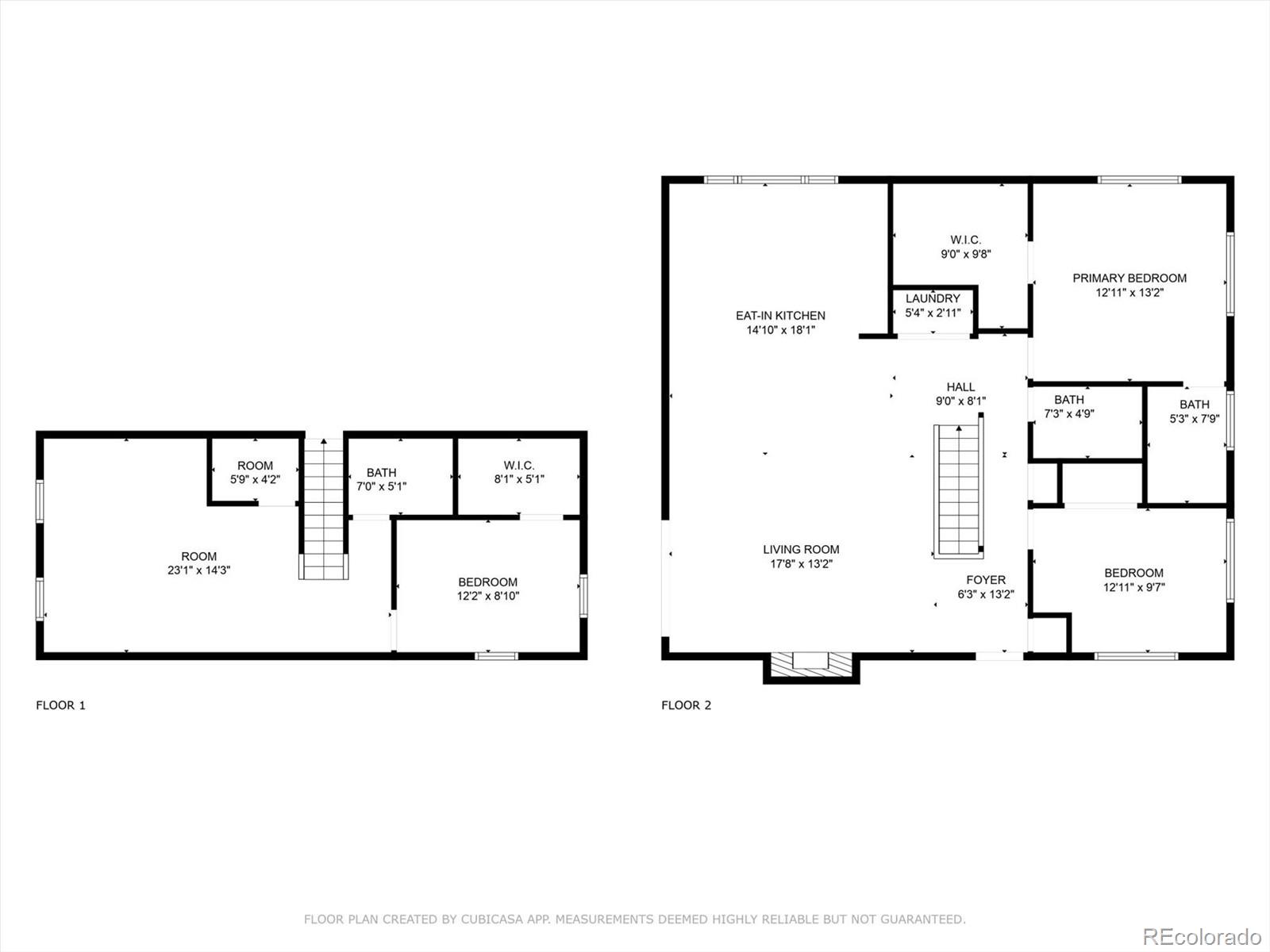
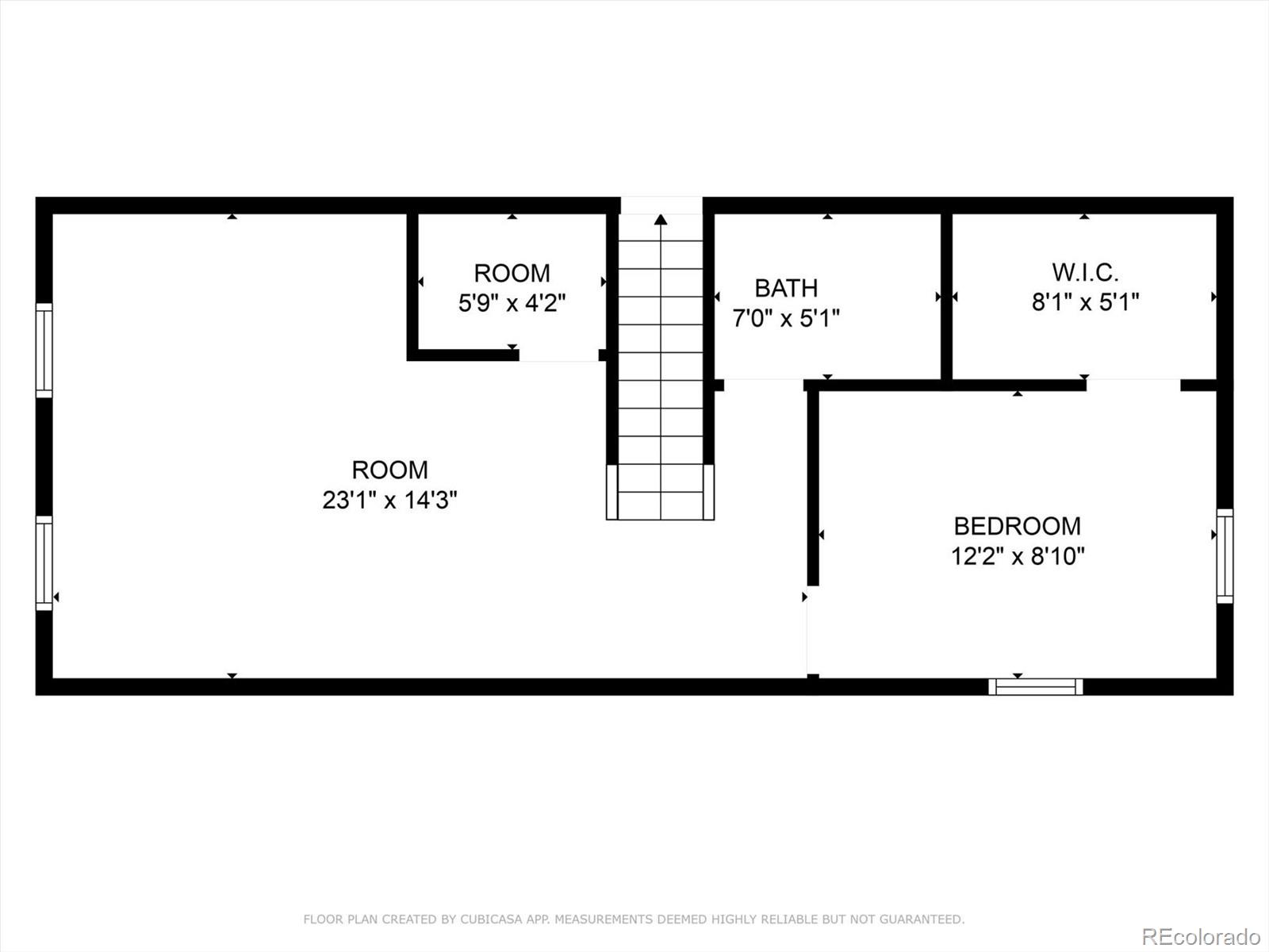
Welcome to 3091 S Krameria Street, a stunning Mid-Century Modern home located in the highly desirable Holly Hills neighborhood. This completely remodeled property offers 1,872 square feet of thoughtfully designed living space, featuring 3 bedrooms and 3 bathrooms. Upon entering, you are greeted by an open main floor plan that seamlessly connects the living, dining, and kitchen areas, creating an inviting atmosphere perfect for both entertaining and everyday living. The gourmet chef's kitchen is a highlight, equipped with high-end appliances, ample counter space, and custom cabinetry, making it a culinary enthusiast's dream. The primary suite is a true retreat, boasting a fantastic walk-in closet and a modern en-suite bathroom. There is an additional bedroom on the main floor as well as a basement bedroom with it's own bathroom providing comfort and privacy for family members or guests. In addition, the finished basement includes a Murphy bed, offering flexibility for hosting visitors or creating a multi-functional space. Set on nearly a quarter-acre lot, the property features a private backyard with a deck, ideal for outdoor gatherings and relaxation. The two-car garage provides ample storage and convenience. Located within the coveted Cherry Creek Schools district, this home offers access to some of the best educational opportunities in the area. The Holly Hills neighborhood is known for its community feel and proximity to local amenities, parks, and transportation. With meticulous attention to detail and move-in readiness, 3091 S Krameria St stands out as the nicest home in the neighborhood. This property is a rare find, combining modern luxury with timeless design. For more information or to schedule a private showing, please contact us today. This exceptional home is ready to welcome its new owners.

Property Details of 3091 S Krameria Street

Property Details

Interior Features

Exterior Features

Community

Other Details

Map Location

Listed by Carla Bartell of Corcoran Perry & Co. (cbartell@corcoranperry.com,303-884-4550)

Sold by Terry Oakes of LIV Sotheby's International Realty

The content relating to real estate for sale in this Web site comes in part from the Internet Data eXchange (“IDX”) program of METROLIST, INC., DBA RECOLORADO® Real estate listings held by brokers other than Carla Bartell are marked with the IDX Logo. This information is being provided for the consumers’ personal, non-commercial use and may not be used for any other purpose. All information subject to change and should be independently verified.

This publication is designed to provide information with regard to the subject matter covered. It is displayed with the understanding that the publisher and authors are not engaged in rendering real estate, legal, accounting, tax, or other professional services and that the publisher and authors are not offering such advice in this publication. If real estate, legal, or other expert assistance is required, the services of a competent, professional person should be sought.

The information contained in this publication is subject to change without notice. METROLIST, INC., DBA RECOLORADO MAKES NO WARRANTY OF ANY KIND WITH REGARD TO THIS MATERIAL, INCLUDING, BUT NOT LIMITED TO, THE IMPLIED WARRANTIES OF MERCHANTABILITY AND FITNESS FOR A PARTICULAR PURPOSE. METROLIST, INC., DBA RECOLORADO SHALL NOT BE LIABLE FOR ERRORS CONTAINED HEREIN OR FOR ANY DAMAGES IN CONNECTION WITH THE FURNISHING, PERFORMANCE, OR USE OF THIS MATERIAL.

All real estate advertised herein is subject to the Federal Fair Housing Act and the Colorado Fair Housing Act, which Acts make it illegal to make or publish any advertisement that indicates any preference, limitation, or discrimination based on race, color, religion, sex, handicap, familial status, or national origin.

METROLIST, INC., DBA RECOLORADO will not knowingly accept any advertising for real estate that is in violation of the law. All persons are hereby informed that all dwellings advertised are available on an equal opportunity basis.

©2026 METROLIST, INC., DBA RECOLORADO® – All Rights Reserved 6455 S. Yosemite St., Suite 300 Greenwood Village, CO 80111 USA

ALL RIGHTS RESERVED WORLDWIDE. No part of this publication may be reproduced, adapted, translated, stored in a retrieval system or transmitted in any form or by any means, electronic, mechanical, photocopying, recording, or otherwise, without the prior written permission of the publisher. The information contained herein including but not limited to all text, photographs, digital images, virtual tours, may be seeded and monitored for protection and tracking.

Hi there! How can we help you?

Contact us using the form below or give us a call.

Send Us A Message:

Do not fill in this field:

This site is protected by reCAPTCHA and the Google Privacy Policy and Terms of Service apply.

Hi there! How can we help you?

Contact us using the form below or give us a call.

Send Us A Message:

Do not fill in this field:

This site is protected by reCAPTCHA and the Google Privacy Policy and Terms of Service apply.

Hi there! How can we help you?

Contact us using the form below or give us a call.

Send Us A Message:

Do not fill in this field:

This site is protected by reCAPTCHA and the Google Privacy Policy and Terms of Service apply.

Do not fill in this field:

This site is protected by reCAPTCHA and the Google Privacy Policy and Terms of Service apply.

Do not fill in this field:

This site is protected by reCAPTCHA and the Google Privacy Policy and Terms of Service apply.

Do not fill in this field:

This site is protected by reCAPTCHA and the Google Privacy Policy and Terms of Service apply.

$

Do not fill in this field:

This site is protected by reCAPTCHA and the Google Privacy Policy and Terms of Service apply.